Seek style
シークのこだわり
Works
施工事例
Voice
お客様の声
Flow
家ができるまで
About
会社案内
Contact
お問い合わせ
TOP
シークのこだわり
施工事例
家ができるまで
会社案内
来場予約
お客様の声
お知らせ
住宅診断(インスペクション)
スタッフブログ
コラム
モデルハウス
よくあるご質問
土地情報
住まいの相談サロン
お問い合わせ
来場予約
資料請求
建売よりも
こだわりが詰まった住宅だから
“あなたらしさ”をつくり出す
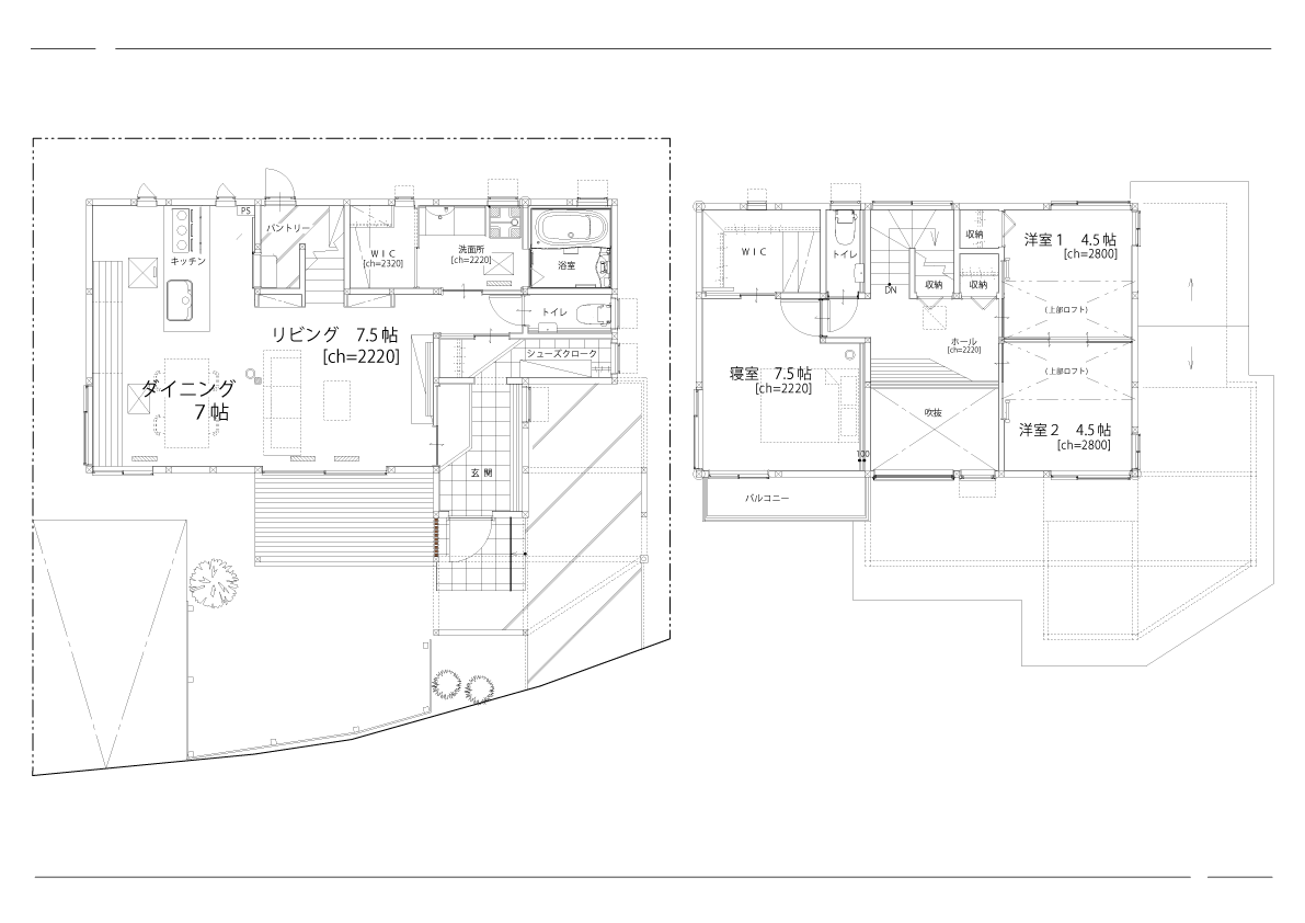
※画像をタップで拡大表示
Contact
お問い合わせ
メールの場合
メールフォームはこちら
こちらのメールフォームをご利用ください。
お電話の場合
0749-68-0890
受付時間
9:00~18:00(※水曜日以外)